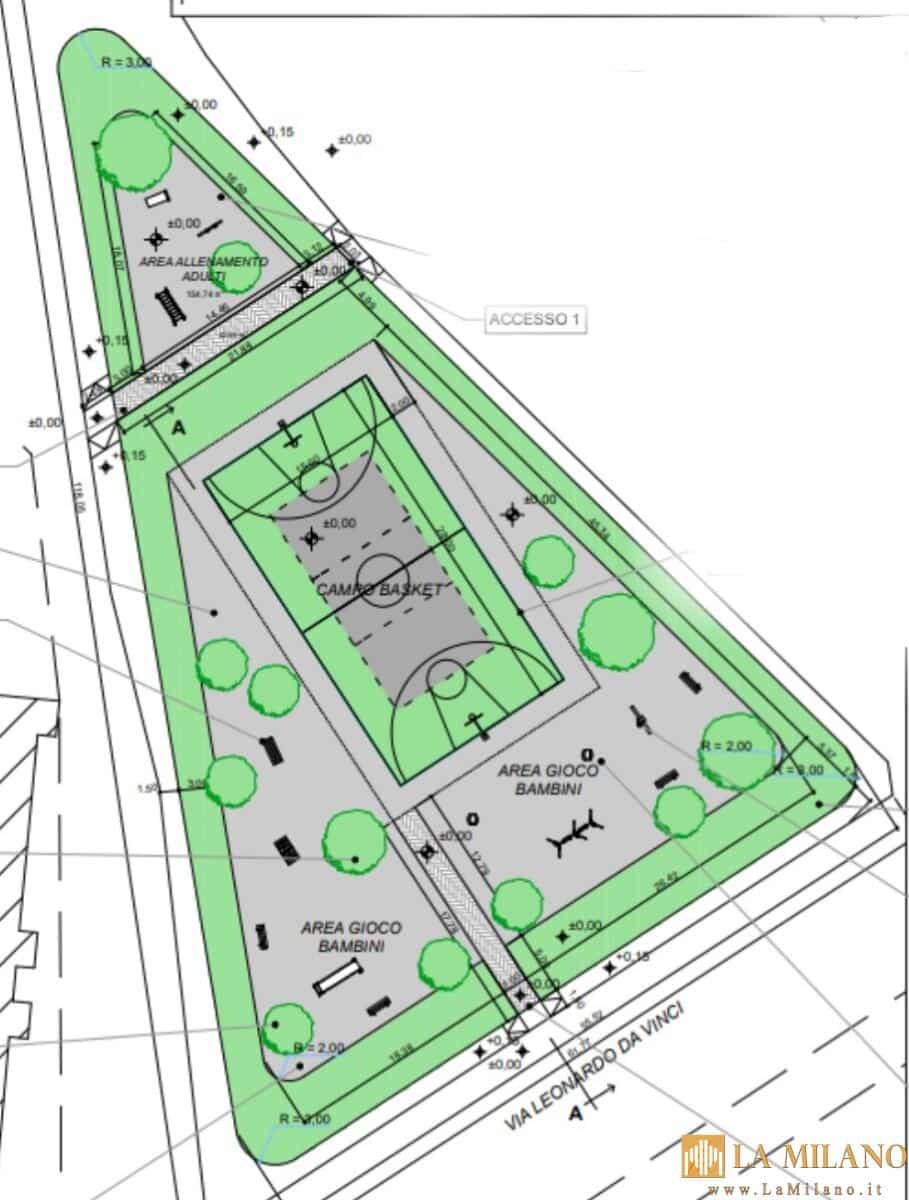
L’amministrazione comunale ha stanziato 150mila euro per la realizzazione di cinque playground in città nei quartieri Commenda
…
continua a leggere – “Brindisi, cinque nuovi playground in città” – su LaMilano.it
L’amministrazione comunale ha stanziato 150mila euro per la realizzazione di cinque playground in città nei quartieri Commenda
…
continua a leggere – “Brindisi, cinque nuovi playground in città” – su LaMilano.it
Una vita intera dedicata alle istituzioni, alla sicurezza e alla tutela della collettività. Si è svolta questa mattina presso il Comando Provinciale dei Carabinieri di Brindisi la cerimonia ufficiale di consegna della Medaglia Mauriziana per dieci lustri di carriera militare, uno dei più prestigiosi riconoscimenti attribuiti al personale delle Forze Armate. A conferire l’onorificenza è […]
Leggi altro...
A Brindisi, i Carabinieri incontrano i bambini ricoverati nel Reparto di Pediatria dell’Ospedale “Perrino”, donando gadget e sorrisi con il supporto della clownterapia. #Brindisi #Carabinieri #Solidarietà …CONTINUA A LEGGERE
Leggi altro...
Riprende dalla Puglia “Facciamo semplice l’Italia. PArola ai territori”, il percorso lungo tutto il Paese del ministro Paolo Zangrillo, con il Dipartimento della funzione pubblica, per condividere e realizzare insieme i tanti progetti che riguardano la Pubblica amministrazione. #eventi #puglia #brindisi #paolozangrillo #facciamosemplicelitalia #semplificazione #digitalizzazione #pubblicaamministrazione …CONTINUA A LEGGERE
Leggi altro...