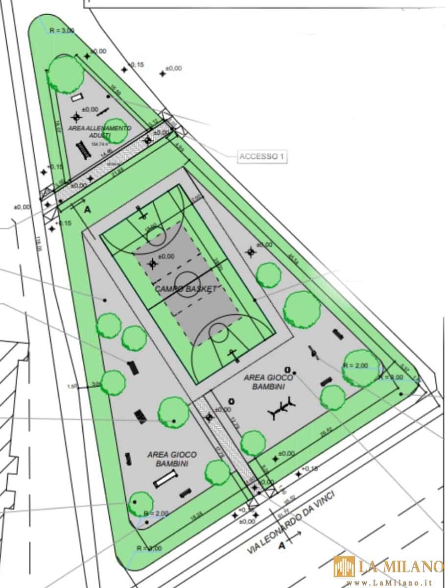
Brindisi, cinque nuovi playground in città

L’amministrazione comunale ha stanziato 150mila euro per la realizzazione di cinque playground in città nei quartieri Commenda …CONTINUA A LEGGERE 

POTREBBE INTERESSARTI

Brindisi

Fuga nella notte a Ostuni: inseguimento ad alta velocità e recupero di due veicoli rubati

Notte di forte tensione tra le strade di Ostuni, dove un’operazione della Polizia di Stato si è conclusa con il recupero di due veicoli rubati al termine di un inseguimento ad altissima velocità che ha messo seriamente a rischio la sicurezza pubblica. L’episodio si è verificato nelle prime ore del mattino, intorno alle 4, tra […]

Leggi altro...
Brindisi

Brindisi, cane vagante sulla statale 379: intervento della Polizia di Stato evita incidenti

Un intervento tempestivo e carico di umanità quello effettuato dalla Polizia di Stato a Brindisi, dove un cane di grossa taglia è stato messo in salvo mentre vagava disorientato lungo una delle arterie più trafficate del territorio. Le segnalazioni degli automobilisti e l’allarme alla Polstrada Era la mattinata di sabato 10 gennaio quando alla sala […]

Leggi altro...
Brindisi

Brindisi, pregiudicato ai domiciliari arrestato per spaccio: sequestrate cocaina e hashish

Prosegue senza sosta l’attività di contrasto allo spaccio di sostanze stupefacenti messa in campo dalla Polizia di Stato nel territorio di Brindisi. Nell’ambito di specifici servizi di controllo disposti dal Questore, nella mattinata del 12 gennaio 2026 gli agenti hanno arrestato un uomo, pregiudicato brindisino classe 1970, già sottoposto alla misura degli arresti domiciliari. I […]

Leggi altro...